Очистное сооружение ливневых стоков Alta Rain Pro 150 в Москве
Документы на оборудование
Описание
Очистное сооружение ливневых стоков Alta Rain Pro 150
Очистное сооружение ливневых стоков Alta Rain Pro II 150 очищает ливневые, талые, производственные и поливомоечные сточные воды, загрязненные нефтепродуктами и взвешенными веществами, отводимые с территорий промышленных предприятий и населенных пунктов. Блочно-модульный комплекс Alta Rain Pro предназначен для подземного монтажа. Выполнен из коррозионно-стойкого полипропилена.
Комплекс поставляется в полной заводской готовности. Габариты блоков не превышают стандартные размеры, что позволяет транспортировать его типовым транспортом. Очистное сооружение ливневых стоков Alta Rain Pro 150 сертифицировано и снабжено всей необходимой документацией для монтажа, обслуживания и эксплуатации.
Модули очистного сооружения Alta Rain Pro 150
- Приёмный модуль
- Сорбционный фильтр Alta Rain – Sorbent module
Особенность уникального коалесцентного фильтра и тонкослойного модуля в улавливании частиц нефтепродуктов (НП) с гидравлической крупностью больше 0,3мм/сек.
Для коалесцентного фильтра и тонкослойного модуля установок Alta Rain Pro не имеет значения концентрация взвешенных веществ и нефтепродуктов на входе в очистное сооружение.
*Производитель имеет право без предварительного уведомления вносить изменения в изделие, которые не ухудшают его технические характеристики, а являются результатом работ по усовершенствованию его конструкции или технологии производства.
Принцип работы Alta Rain Pro 150
В зависимости от производительности комплекс Alta Rain Pro состоит из нескольких блоков-модулей способствующих последовательному удалению загрязнений из стока. Подобранные в зависимости от качественного и количественного состава стока, система Alta Rain Pro 150 позволяют добиться максимального эффекта очистки.
- Приёмный модуль Alta Rain Pro 150 включает в себя приёмную камеру, зону накопления осадка, тонкослойный отстойник и коалесцентный фильтр
- Сорбционный фильтр Alta Rain Pro 150 очищает ливневые сточные воды до требований ПДК регламентируемых для сброса в водные объекты хозяйственно-питьевого и культурно-бытового водопользования.
Преимущества коалесцентного фильтра Alta Rain Pro
- неограниченная фильтрационная емкость
- любая входная концентрация нефтепродуктов в стоке
- эффективность более 99%
Обслуживание Alta Rain Pro 150
В системе предусмотрена система выгрузки осадков из камер накопления осадка ассенизационной техникой. Периодичность выгрузки: 1 раз в 6-12 месяцев (или по мере накопления осадка). Во время обслуживания производится откачка нефтепродуктов, а при необходимости замена фильтрующего материала сорбционного фильтра.
В базовом исполнении Alta Rain Pro энергонезависимое оборудование.

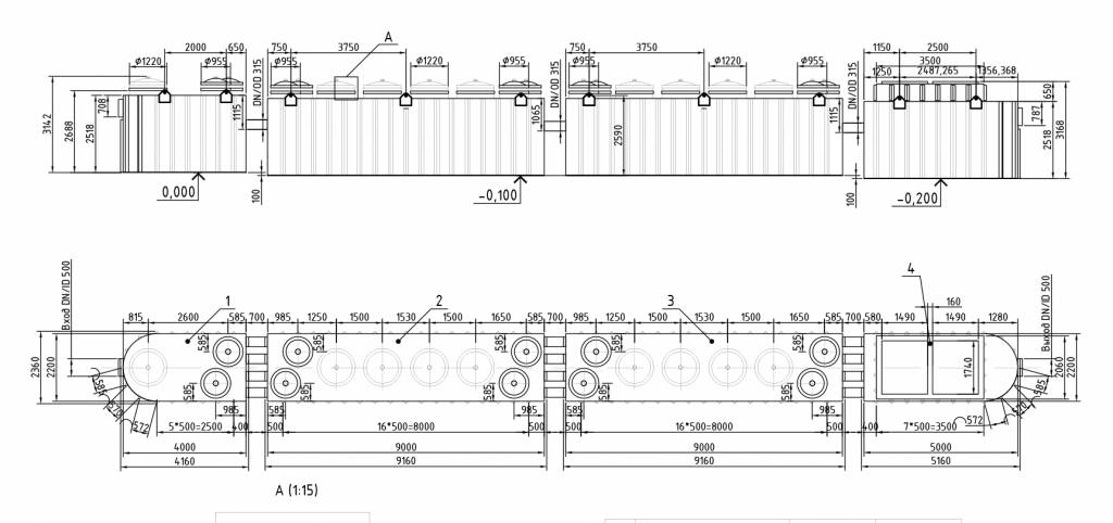
Габаритные размеры
Характеристики
|
Производительность, л/сек
|
150 |
|
Производительность, м³/час
|
540 |
|
Транспортировочный вес, кг
|
605, 2444, 2460, 1822 |
|
Габариты (Длина х Ширина х Высота), мм
|
29740х2360х3168 |
|
Количество х длина блоков, мм
|
5 (M1, М2 - 2шт., М2а, M3а) |
|
Максимальный рабочий вес, тонн
|
12,856, 21,530, 21,547, 16,272 |





