Мешковый обезвоживатель ALTA SOLID TRAP в Москве

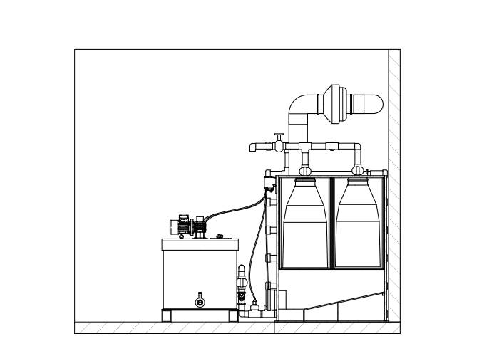
Мешковый обезвоживатель Alta Solid Trap представляет собой блок, состоящий из фильтрационных мешков, бака флокулянта с управляющей автоматикой, монтирующийся в отапливаемом помещении.
Блок оборудован КНС для накопления и транспортировки фильтрата, в приемную камеру ОС. В зоне накопления и уплотнения осадка в ОС установлен насос с режущим механизмом, который перекачивает осадок для обезвоживания. Управление насосом осуществляется в ручном режиме.
Работа обезвоживателя организована следующим образом:
Отработанный осадок из камеры накопления осадка очистного сооружения по напорному трубопроводу поступает в распределительный лоток обезвоживателя, откуда поступает в фильтрационные мешки из нетканого материала. Отфильтрованная вода сливается в придонный сборник и направляется во встроенную КНС, откуда транспортируется в приемную камеру очистного сооружения. По мере заполнения шламом мешок снимается и вывозится на утилизацию или для дальнейшего использования.
Мешковый обезвоживатель оборудован баком и системой дозирования флокулянта в случае высокой влажности осадка и не достаточной эффективности обезвоживания можно использовать добавление флокулянта для формирования стабильных хлопьев.

Значительным преимуществом применения мешкового обезвоживателя в цикле очистки стока является поддержание постоянной равномерной концентрации активного ила оптимальной для работы очистных сооружений.
При использовании мешкового обезвоживателя объем шлама подлежащего утилизации значительно снижается, к тому же нет необходимости пользоваться услугами ассенизационной машины, осадок влажностью 50–70% расфасован в мешки и имеет товарный вид и ценность, при необходимости может быть вывезен на полигоны ТБО своими силами. Вывоз на полигон ТБО шлама, не реже 1 раза в 2 дня.
![]() |
![]() |




